Home
/
RM Collection
/ 103 Dunning Street, Malta
Under Construction
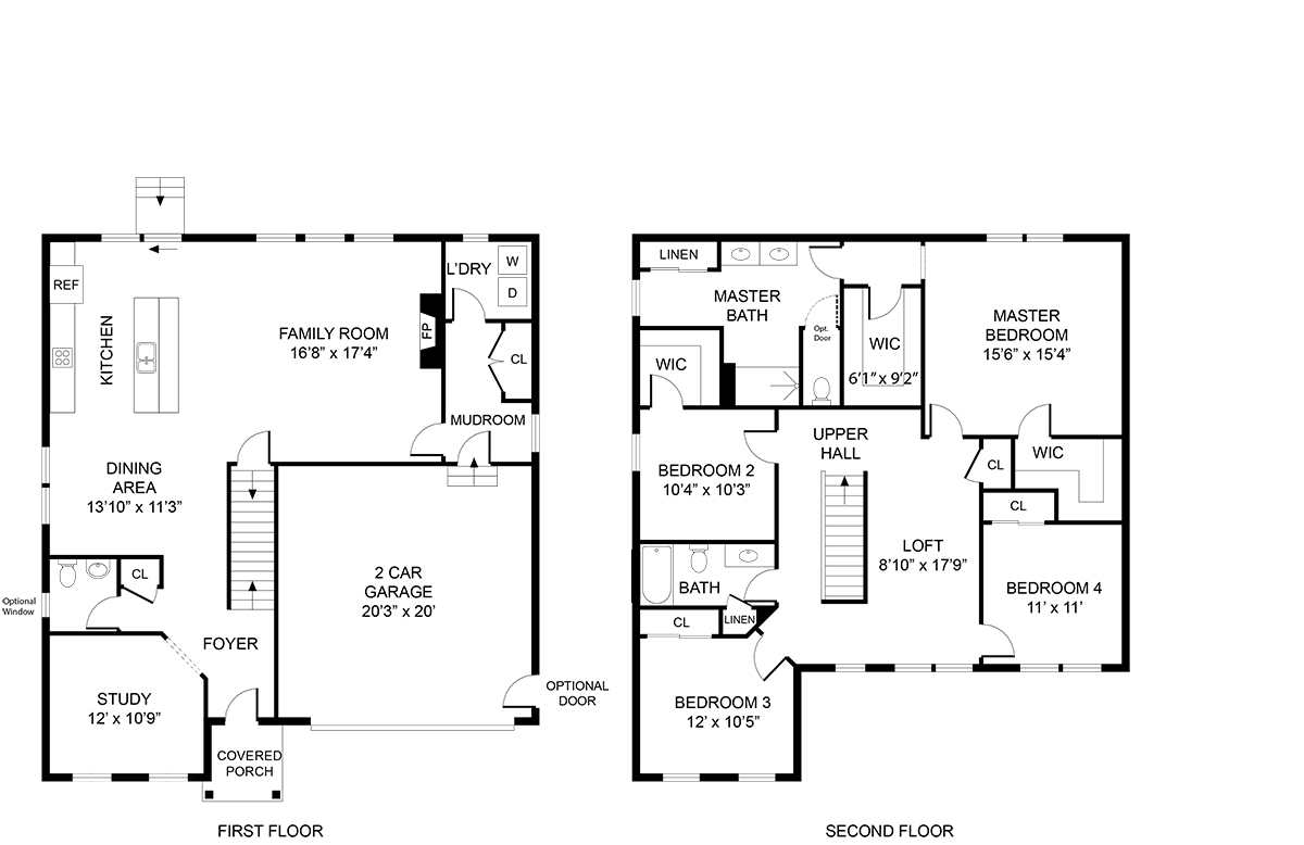
103 Dunning Street
Coming Soon to Malta!
Priced at $659,000
Contact Maria Millington 518-817-0377
Inquire about this home
×
Previous
Next
×
×
Inquire about: 103 Dunning Street, Malta
Your Name
Your E-mail
Your Phone (optional)
Enter a Message